产权年限:70年产权 房本年限:满二年
参考预算:首付9万,月供2262元
南湖边,老州医院门口,世纪花园东一院,单价3000多买复式楼。一、房源优势:
1、正房型楼层价出售
2、挑高客厅宽敞大气
3、简装提包入住
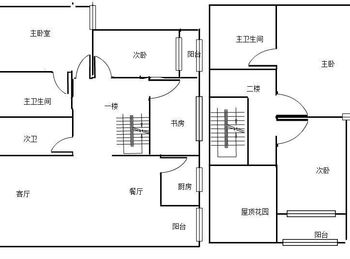
二、户型介绍:
5房格局方正,使用率超赞
1、客厅挑高、宽敞舒适、阳光非常充足
2、卧室搭配的很新颖,使用率非常之高
3、厨房带阳台,让您和家人有足够的空间展现私家厨艺
4、连接客厅和厨房之间是您和家人享受美味的餐厅,足足可摆下多人桌,让您热情的招待亲朋好友。
联系我时,请说是在红河信息港看到的,谢谢!









